DomoPhoto
Fotobaza
architektoniczna

Kyiv, Большая Васильковская улица, 34

Usytuowanie:Ukraina, Kijów, Kyiv, Большая Васильковская улица
Seria:Проекты 4-этажных домов до 1920 года
Developer:Моссаковский А. М.
Kondygnacji:4
Construction finished:189х
Current state: In use 
Name/purpose:Доходный дом
Доходный дом статского советника А. М. Моссаковского, кон. 1890 — х гг.

[КИ — 1, стр. 1912]; [ВК/1899]

Years:  2011 · 2013 · 2016

Secondary photos: ukryj / pokaż
405 KB
805

7 sierpnia 2016 r.
Autor: SergeyUA
CC-BY-NC 4.0

2016
2013
470 KB
538

29 października 2013 r.
Autor: SergeyUA
CC-BY-NC 4.0

415 KB
409

Пожарная лестница

29 października 2013 r.
Autor: SergeyUA
CC-BY-NC 4.0

471 KB
352

25 maja 2013 r.
Autor: SergeyUA
CC-BY-NC 4.0

2013
2011
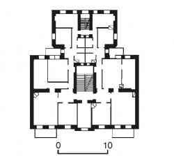
69 KB
480

План 2 — го этажа

Звід пам'яток iсторiї та культури України. Енцiклопедичне видання. Київ: 2011. Кн. 1, ч. 3, стр. 1912

2011 r. (nie dokładnie)
Received from SergeyUA
CC-BY-NC 4.0


Pictures displayed: 5 from 5


Twój komentarz

Please do not discuss political topics or you will be banned for 1 month!
Nie jesteś zalogowany".
Tylko zalogowani użytkowincy mogą zostawiać komentarze.