ДомоФото
Киев, Большая Васильковская улица, 34
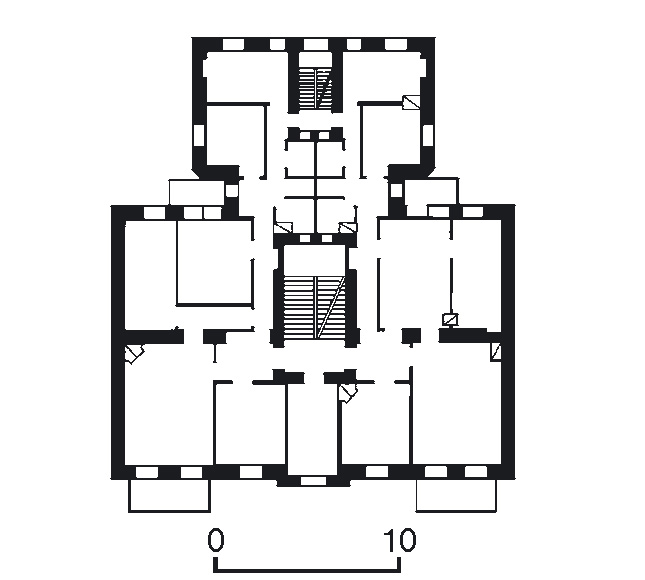
План 2 — го этажа

Звід пам'яток iсторiї та культури України. Енцiклопедичне видання. Київ: 2011. Кн. 1, ч. 3, стр. 1912
Прислал SergeyUA · Киев           Дата: 2011 г. (примерно)

Информация о фото

Лицензия: CC-BY-NC 4.0
Опубликовано 12.01.2017 16:34 MSK
Просмотров — 481
Подробная информация

Оценка

Рейтинг: 0

Большая Васильковская улица, 34

Местонахождение:Украина, Киев, Большая Васильковская улица
Серия:Проекты 4-этажных домов до 1920 года
Застройщик:Моссаковский А. М.
Этажность:4
Окончание строительства:189х
Текущее состояние:Используется
Название/назначение:Доходный дом
Доходный дом статского советника А. М. Моссаковского, кон. 1890 — х гг.

[КИ — 1, стр. 1912]; [ВК/1899]

Параметры съёмки

Имя автора:Administrator
Показать весь EXIF

Ваш комментарий

За обсуждение политики будет выноситься бан на 1 месяц.
Вы не вошли на сайт.
Комментарии могут оставлять только зарегистрированные пользователи.