ДомоФото
Серия КЖ — Чертежи и планировки
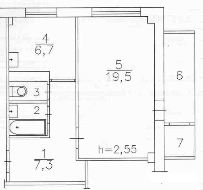
Планировка 1-комнатной квартиры в доме серии КЖ. Такие квартиры спроектированы только в торцах здания
Прислал wolf92 · Красноярск

Информация о фото

Лицензия: Copyright ©
Опубликовано 12.01.2018 20:48 MSK
Просмотров — 1102
Подробная информация

Оценка

Рейтинг: 0

Параметры съёмки

Показать весь EXIF

Ваш комментарий

За обсуждение политики будет выноситься бан на 1 месяц.
Вы не вошли на сайт.
Комментарии могут оставлять только зарегистрированные пользователи.